Lukas Raeber
zurück
Drahtzug
Dach an zwei Balken
Beschreibung

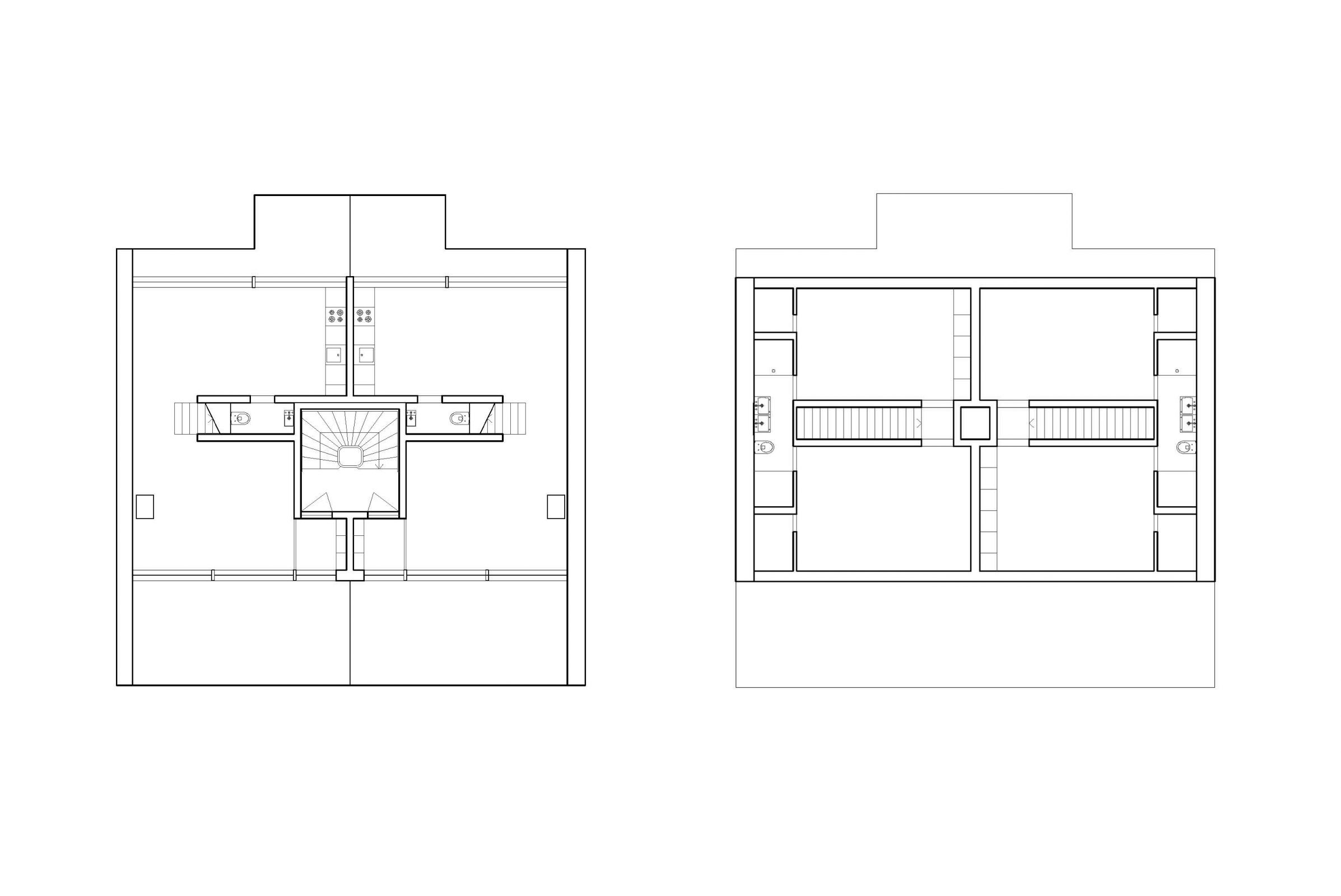
Ein um 1925 gebautes Mehrfamilienhaus in Kleinbasel, welches um zwei Stockwerke erweitert wurde, bildet den Gegenstand des Entwurfes. Der von aussen nahezu verborgene Dachausbau schafft Platz für zwei neue, spiegelsymmetrisch angelegte Maisonette-Wohnungen.
Das wesentliche konstruktive Prinzip des Dachausbaus bilden zwei Firstpfetten, die zwischen die beiden abschliessenden Brandwänden des Gebäudes gespannt sind. An diesen hängt die gesamte Dachkonstruktion – Wände und Geschossdecken miteingeschlossen – aus vorfabrizierten Holzbauelementen. Dank der frei gespannten Konstruktion entsteht im unteren Stockwerk der Maisonette-Wohnungen ein durchgehender offener Wohnraum, der zu beiden Seiten grosszügig mit Fensterfronten geöffnet ist und jeweils auf eine Terrasse führt.

Im Inneren bildet der Treppenlauf ins oberste Geschoss entlang der statischen Achse das Rückgrat der Wohnungen. Er dient als zentrales Erschliessungselement, das die offenen, extrovertierten Räume im unteren Geschoss mit den introvertierten Räumen des oberen Geschosses verbindet. Die Konstruktion stützt und bestimmt somit die Funktion der Räume und deren Qualitäten. Eher introvertiert sind die beiden oberen Schlafräume, gegen Himmel orientieren sie sich mit grossen Dachflächenfenstern. Die unteren Wohnräume hingegen öffnen sich mit grosszügigen Fensterfronten und Terrassen zur Hof- und Strassenseite. Die Oberlichter über der Treppe, eingefügt zwischen den beiden Firstpfetten, fangen das Himmelslicht auf und lassen es durch den zweigeschossigen Treppenschacht in das Zentrum des Wohnraumes fallen.

Dem Grundsatz, dass die Form der Funktion folgt wird in diesem Projekt besonders Folge getragen. So ist die abgestufte Wand der Treppenbrüstung eine Ableitung der Treppengeometrie und zudem im Achsabstand der Holzbalkendecke. Das innere Treppengeländer aus industriellem Bodengitter findet sich auf den Terrassen in rohem Zustand wieder und dient als Absturzsicherung. Die verzinkten Verbindungselemente der Holzbalken beim Oblicht sind sichtbar belassen. Folgerichtig ist die Form der Feuerstelle der reinen Funktion abgeleitet. Der hintere Teil der Feuerstelle, welcher sich von Boden bis Decke erstreckt, beinhaltet sämtliche Abluftrohre und Installationsstränge der darunterliegenden Wohnungen. Der vordere Teil umhüllt den Feuerraum. Gemeinsam sind die Elemente in rohem Stahl zusammengefasst und bilden das zentrale Element des Wohnraumes. Das verwendete Fichtenholz, welches zur Konstruktion in Elementbauweise verwendet wurde, wird im Endzustand sichtbar belassen. So bleibt das Gleichgewichts- und statische Prinzip der hängenden Dachkonstruktion für die Bewohner sichtbar und trägt zur räumlichen Atmosphäre bei.

Projektdaten

Fotografie & Film

  • Weisswert, Basel

Wandbild

  • Jan Paul Evers, Abstrakt getarnte Bürgerlichkeit, 2018
Publikationen
03_lukasraeber_drahtzug
Das frei gespannte Wohngeschoss wird räumlich durch das zentrale Erschliessungselement gegliedert.
04_lukasraeber_drahtzug
brandwand_jan_paul_evers_lukas_raeber
Die Brandwand ist mit einem Werk von Jan Paul Evers bespielt
00_lukasraeber_drahtzug_kueche
Die Hebeschiebefenster nehmen die Fluchten der Deckenbalken auf
08_lukasraeber_drahtzug
Das statisch relevante Konstruktionsholz aus Fichte bleibt im Schlusszustand sichtbar. Die gesamte Dachkonstruktion hängt primär an den beiden Firstpfetten
07_lukasraeber_drahtzug
Die beiden Maisonette-Wohnungen sind als Gegenspieler mit unterschiedlich lasiertem (weissliche Lasur und natürlich hölzern) Konstruktionsholz ausgebildet
11_lukasraeber_drahtzug
Sämtliche Einbauten wie zB. die Türen übernehmen die Fluchten und Höhen der tragenden Balken
14_lukasraeber_drahtzug
Städtische Sichtbezüge auf den Terrassen
lukasraeber_drahtzugstrasse_grundriss
Einweihungsfest Schule Bota
bota_einladung_lukasraeber
ETH Zürich BUK Vortrag 26. Nov 2024
lukasraeber_buk_nov_2024_square
1. Preis beim Wohnhaus Zürich
240718_1_preis_1_square
BUK ETH Zürich Gastkritiker 04.07.2023
cover-kD
Baugrube Schule BoTa Dürnten
lukas_raeber_bota_top_back_0
Lecture Lukas Raeber at Lokremise St.Gallen
lukasraeber_lokremise_stgallen
Robbert Barry installation at Drahtzugstrasse Basel
beat_raeber_lukas_raeber_robert_barry
Interview im UMBAU & RENOVIEREN Magazin
umbaurenvoieren_lukasraeber_0
Interview im MODULØR Magazin
modulor_lukas_raeber_1
Publikation Efringer im Hochparterre
lukasraeber_hochparterre_ansichtssache_4_0
Publikation Efringer im Modulor Magazin
overwiew_modulor_lukasraeber_0
Publikation Verkehrsgarten im Monocle Magazin
monocle_lukasraeber_bk
Architekturdialoge - Hier und jetzt
flyer_
Einweihung Verkehrsgarten Basel
verkehrsgarten_einweihung.JPG
Einweihungsfest Mehrfamilienhaus Efringerstrasse
efringer_einweihung.JPG
2. Preis für das Schulzentrum Unterlang in Ruggell, Liechtenstein
lukasraeber_ruggell_2_rang_hof_1_0
2. Preis für das Schulhaus Walenbach in Wetzikon ZH
lukasraeber_news_2_prize
1.Preis für die Schulanlage Kappeli SG
lukasraeber_estradareichen_Schule_0
3. Preis für das Jugend- und Veranstaltungshaus Allmend
lukasraeber_uitikon_veranstaltung_aussen_1
2. Preis für das Schulhaus Mühleberg in Vaduz, Liechtenstein
lukasraeber_vaduz_2_preis
Studienauftrag Mehrzweck- und Sporthalle Steffisburg
raeber_zumthor_news_1
Veranstaltungsgebäude Kuppel
kuppel_entrance_lukasraeber
2. Preis für unseren Beitrag bei der Heilpädagogischen Schule in Rümelbach ZH!
estradareichen_raeber_hps_ruemelbach_schulhof_news
Projekt Josef - Baueingabe
lukas_raeber_josef_gallery_exhibition
1. Preis beim Schulcampus Bogenacker-Tannenbühl in Dürnten ZH
lukasraeber_schule_duernten_aussen_news_1_preis_0
Haus in Riehen - Frontale Ansicht
lukasraeber_riehen_0
Installation in Aserbaidschan "The­ater of Com­bus­tion" fertigestellt
lukasraeber_michaelhirschbichler_combustion
Haus in Riehen - Struktur im Gleichgewicht
lukasraeber_eik_frenzel_riehen_square
Jan Paul Evers bespielt die Brandwand des Projektes Drahtzug
lukasraeber_brandwand_jan_paul_evers_LR_1
Ausflug in die Moderne
lukasraeber_norway_2
Büroreise Norwegen
lukasraeber_norway
Büroreise Stuttgart
lukasraeber_stuttgart_2
Haus in Riehen
lukasraeber_riehen_1
3.Preis für das Schulhaus Limmattal!
lukasraeber_limmattal_aussen_news
Projekt Brombacherstrasse
lukasraeber_brombacher
Projekt Drahtzugstrasse fertiggestellt
07_lukasraeber_drahtzug
3.Preis für das Schulhaus Limmattal!
Foto%2008.04.17%2C%2014%2004%2034
Drahtzug
Drahtzug
03_lukasraeber_drahtzug
Das frei gespannte Wohngeschoss wird räumlich durch das zentrale Erschliessungselement gegliedert.
04_lukasraeber_drahtzug
brandwand_jan_paul_evers_lukas_raeber
Die Brandwand ist mit einem Werk von Jan Paul Evers bespielt
00_lukasraeber_drahtzug_kueche
Die Hebeschiebefenster nehmen die Fluchten der Deckenbalken auf
08_lukasraeber_drahtzug
Das statisch relevante Konstruktionsholz aus Fichte bleibt im Schlusszustand sichtbar. Die gesamte Dachkonstruktion hängt primär an den beiden Firstpfetten
07_lukasraeber_drahtzug
Die beiden Maisonette-Wohnungen sind als Gegenspieler mit unterschiedlich lasiertem (weissliche Lasur und natürlich hölzern) Konstruktionsholz ausgebildet
11_lukasraeber_drahtzug
Sämtliche Einbauten wie zB. die Türen übernehmen die Fluchten und Höhen der tragenden Balken
14_lukasraeber_drahtzug
Städtische Sichtbezüge auf den Terrassen
lukasraeber_drahtzugstrasse_grundriss
Vaduz
200709_lukasraeber_vaduz_aussen_0
The new structure links the two existing schools and creates a central meeting point
Steffisburg
raeber_zumthor_haupteingang_0
Die Kultur- und Sporträume werden unter einem gemeinsamen Dach vereint
Kuppel
kuppel_openeable_lukasreaber
Der öffenbare Konzertsaal der Neuen Kuppel ist polyvalent Nutzbar
Haus in Riehen
raeber_frenzel_haus_in_riehen_front
Eine horizontale Schichtung: Der Holzbau liegt auf zwei Betonscheiben auf
Kappeli
lukasraeber_estradareichen_Schule_0
Umspült von einem grosszügigen, zusammenhängenden Freiraum definieren das neue Schulhaus gemeinsam mit dem behutsam eingebetteten Bestandsgebäude das bauliche Herzstück der durchgrünten Gesamtanlage und des Quartiers.
Efringer
lukasraeber_efringer_hof_4_2_1
Das Mehrfamilienhaus stuft sich zum Hof hin ab, wodurch grosszügige Terrassen für die einzelnen Wohnungen geschaffen werden